PHASE
ONE
The New Community Church building was constructed over 20 years ago as Phase One of an original vision that included multiple Phases with upgrades to the facility and property. We have seen exponential growth both spiritually and numerically, and our current building does not have enough space to contain it all. Due to this, we have been feeling the need to expand our facilities. After countless months of prayer and seeking the Lord, our leadership believes that He is calling us to begin Phase Two of that original vision to Make Room For More!

If you feel led to give a donation/offering directly toward the 'Make Room For More' building project, you can click the button below to go to our Giving Portal. Once there, instead of "General/Tithe" you can click the dropdown menu and select "Building Fund" before making your donation/offering. We are truly grateful for anything that is given, and we pray God blesses you as you give.
PHASE
TWO
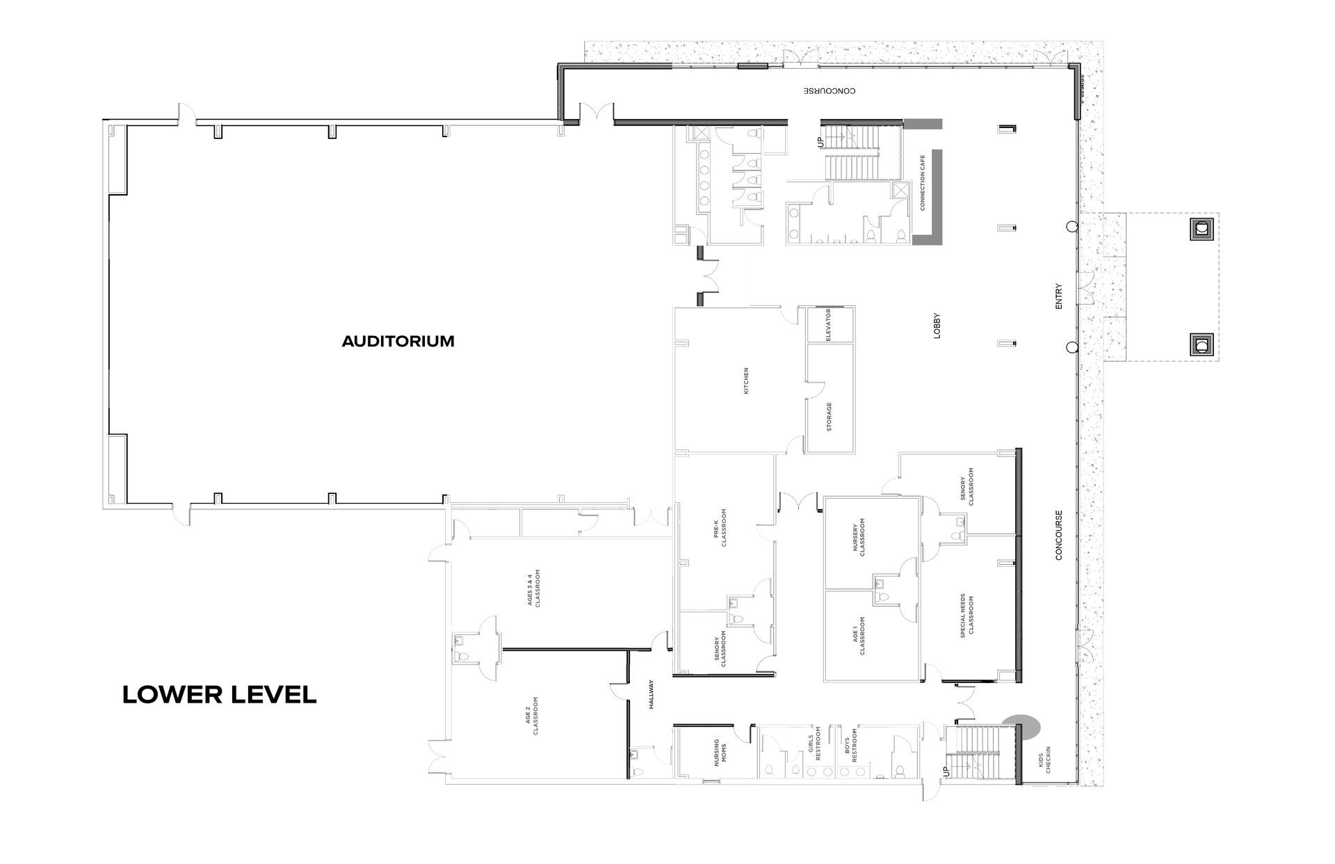
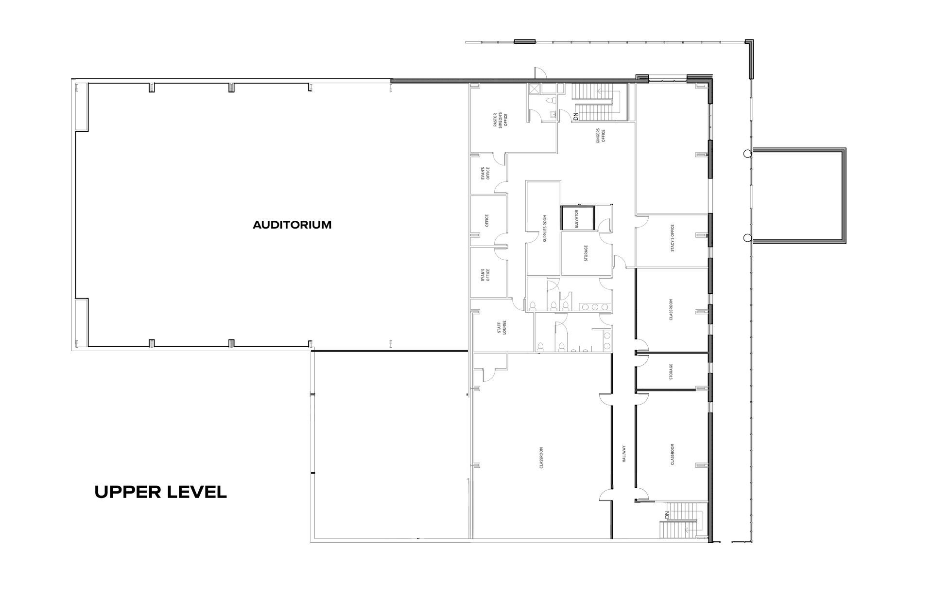
Phase Two of our building plan is beginning in early 2026! Below you can see the heart and vision behind each aspect of this phase of the expansion as well as the floor plans and several concept photos of the completion of Phase Two. Please join us in prayer and be faithful in your tithes and offerings as we make room for more!
If you feel led to give a donation/offering directly toward the 'Make Room For More' building project, you can click the button below to go to our Giving Portal. Once there, instead of "General/Tithe" you can click the dropdown menu and select "Building Fund" before making your donation/offering. We are truly grateful for anything that is given, and we pray God blesses you as you give.
PHASE
THREE
Phase Three is a set of future plans that we believe will come to completion in the not-too-distant-future. We believe that God’s timing will direct and guide our leadership team as they make decisions. We also believe that He will provide the resources needed to complete this project as our church continues to grow along with the Phase Two expansion. Below you can see several concept photos and floor plans for Phase Three which will include a brand new Auditorium that seats 750+, a new large Lobby area with more entrances, larger connection areas, a larger cafe, more bathrooms, more parking, and many other features as we continue to make room for more! We ask that you would join us in faithful prayer and faithful tithes and offerings as we follow God's plan for our church in the coming years!







If you feel led to give a donation/offering directly toward the 'Make Room For More' building project, you can click the button below to go to our Giving Portal. Once there, instead of "General/Tithe" you can click the dropdown menu and select "Building Fund" before making your donation/offering. We are truly grateful for anything that is given, and we pray God blesses you as you give.






